Opis nekretnine
Fantastičan 4s dvoetažni stan u novoj luksuznoj urbanoj vili sa 3 stana na izvanrednoj, atraktivnoj mikro lokaciji na Srebrnjaku, svega 5 min vožnje do najstrožeg centra grada: katedrale i Trga bana Jelačića.
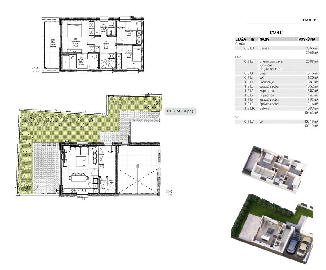
Neto površina stana je 104,63 m2, dvostruka garaža je površine 30,65 m2 uz pripadajući privatni vrt od 109,19 m2. Ukupno NKP 147,24 m2.
Sastoji se od dnevnog dijela u prizemlju (predsoblje, gostinjski wc, dnevni boravak, kuhinja, blagovaonica, terasa i vrt), spavaćeg dijela na prvom katu (tri spavaće sobe, dvije kupaone, od kojih je jedna povezana direktno sa master sobom, terasa) te dva garažna mjesta uz stan.
Stan karakterizira zaseban ulaz iz ograđenog vrta, dvostruka spojena garaža s direktnim pristupom vlastitom vrtu i ulazu, te je stan koncipiran kao manja kuća unutar većeg objekta.
Oprema i izdvojene karakteristike stana:
Koncept stana kao manja kuća u većem objektu
Dnevni dio u prizemlju, spavaći dio na katu
Obje etaže imaju terasu, prizemna etaža ima i vrt spojen s prilazom te dvostrukim garažnim mjestom
Objekt projektiran da zadovolji energetski razred A
Konstrukcija armiranobetonska
Vanjska stolarija Schüco najvišeg razreda, uz lamelirana stakla na stijenama radi dodatne termičke i zvučne izolacije
Elektro pokretane žaluzine upravljanje i putem mobilnih uređaja
Stropno i podno grijanje prostora, radi maksimalne ugode boravka u prostoru, upravljanje i putem mobilnih uređaja
Dio stana je dodatno ventiliran rekuperatorom zraka
Podovi kombinacija vrhunskog hrastovog parketa i pločica 1. klase; vrhunska keramika i sanitarna oprema.
Očekivani završetak gradnje 12/2024.
Bez agencijske provizije za kupca.
Ostali podaci
- Tip ponude:prodaja
- Podtip nekretnine:Stan u zgradi
- Prijevoz:Autobus
- Udaljenost prijevoza:2 min
- Grijanje:Dizalica topline
- Stolarija:ALU stolarija
- Orijentacija:Sjever,Jug,Istok,Zapad
- Energetska učinkovitost:A
Prostori vezani uz nekretninu
- Garaža
- Terasa
- Vrt
Opis nekretnine
- Blizina centra
- Pristup invalidima
- Uređena okućnica
Prikazane cijene u Kn su okvirne i izračunate su na osnovu cijene u Eurima i srednjeg tečaja HNB u tekućem danu.
Maksimir
Naziv Maksimir odnosi se na nekoliko stvari: to je jedna od zagrebačkih četvrti, stadion NK Dinama, park i Zoološki vrt koji je uklopljen u dio parka.
Lociran u istočnom centralnom dijelu grada, Maksimir je primarno bio park.
Izračunajte ratu kredita za navedenu nekretninu
Izražene brojke su samo primjer, za točne informacije obratite se vašoj banci ili kreditnoj kući.
Ukoliko za ovu nekretninu vidite niže oglašenu cijenu ista vrijedi kod nas!

