ID 4498
  • Follow changes

Centar-Đorđićeva-prekrasan,netom renoviran 4s stan s balkonom

  • 120.75 m2
  • 4
603.750.00 € cca 4.548.954.38 Kn 5.000.00 €/m²
Kontaktirajte nas
Meri Jurjević tel: +385 1 2421 977 mob: +385 91 621 9219
01

Opis nekretnine

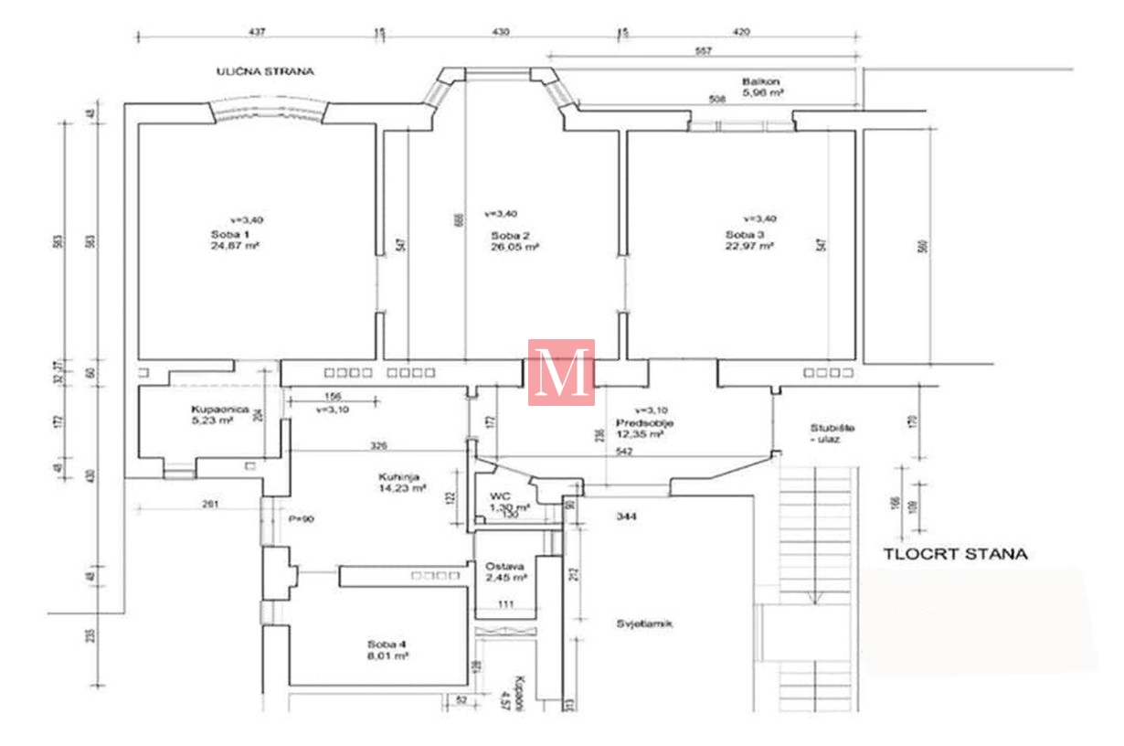
Netom renoviran 4S stan NKP 120,75 m2 na 2. katu reprezentativne zgrade bez lifta u centru grada – Đorđićeva ulica.
Sastoji se od ulaznog predsoblja, 3 velike sobe u nizu (od kojih jedna ima izlaz na balkon), manje radne sobe, kuhinje, kupaonice, zasebnog wc-a i ostave.
U prostoru su postavljene nove instalacije, te je obnovljena vanjska i unutarnja stolarija te parket.
Zgrada ima novu fasadu i konstrukcijska obnova je dovršena 2025. godine.
Parking je javni, 1. zona ispred zgrade, ili u jednoj od obližnjih javnih garaža.
Izvrsna lokacija, blizina svih potrebnih sadržaja. 
Agencijska provizija: 3% + PDV. 

02

Ostali podaci

  • Tip ponude:prodaja
  • Podtip nekretnine:Stan u zgradi
  • Prijevoz:Tramvaj
  • Orijentacija:Sjever

Prostori vezani uz nekretninu

  • Balkon

Opis nekretnine

  • Centar mjesta/grada

Prikazane cijene u Kn su okvirne i izračunate su na osnovu cijene u Eurima i srednjeg tečaja HNB u tekućem danu.

03

Centar

Kada govorimo o Zagrebu, prvo na što pomislimo jest centar grada podijeljen na Gornji i Donji grad sa mnoštvom malih ulica, kafića punih ljudi, kazališta, muzeja, galerija, kina i brojnih parkova.

Gornji je grad najstariji dio grada, ustvari, nekada je i sam bio srednjovjekovni gradić. Ranije zvan Gradec, u 19. se stoljeću ujedinio sa Kaptolom u grad kakvog danas poznajemo – Zagreb.

04

Izračunajte ratu kredita za navedenu nekretninu

Izražene brojke su samo primjer, za točne informacije obratite se vašoj banci ili kreditnoj kući.

Ukoliko za ovu nekretninu vidite niže oglašenu cijenu ista vrijedi kod nas!