Opis nekretnine
Prodaje se stan na 1. katu novogradnje na predivnoj i mirnoj lokaciji okruženoj zelenilom.
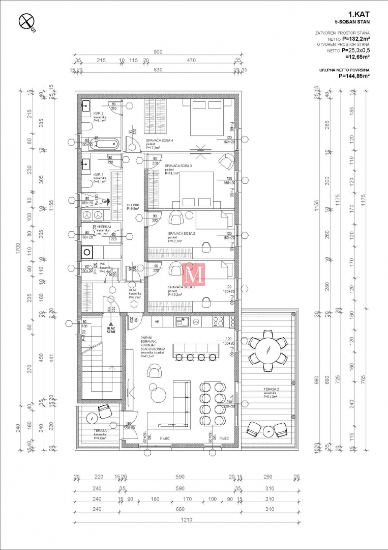
Stan se sastoji od ulaznog hodnika, open space kuhinje, blagovaonice i dnevnog boravka sa izlazima na 2 terase, 4 spavaće sobe, 2 kupaonice od kojih je jedna spojena sa spavaćom sobom, toaleta, te vešeraja.
Zatvorena površina stana je 132,20 m2, a površina terasa je 25,30m2 (izravan pristup u privatni dio vrta sa veće terase). Prodajna površina stana sa terasama je 144,85m2.
Uz stan dolazi garaža (16m2 visine 3,5m), vanjsko parkirno mjesto (12m2) te vrt (40m2).
Zgrada je građena po suvremenim standardima, konstrukcija je betonska te protupotresna. Stan će biti opremljen dizalicama topline Vaillant, klima uređajima te podnim grijanjem. U ranim fazama gradnje moguć je dogovor oko redizajna soba te odabira dizajna završnih detalja (pločice, parketi).
Prvi javni prijevoz je udaljen svega 4min hoda te povezuje lokaciju sa centrom grada. U neposrednoj blizini su svi potrebni sadržaji kao što su trgovina, škola, park, bolnica, dom zdravlja i sl.
Izvrsna lokacija i prilika na tržištu – preporuka agencije!
Agencijska provizija: 2%+PDV
Ostali podaci
- Tip ponude:prodaja
- Podtip nekretnine:u stambenoj zgradi
- Stanje:Uređeno
- Prijevoz:Autobus
- Udaljenost prijevoza:4 min
- Grijanje:Podno grijanje
Prostori vezani uz nekretninu
- Garaža
- Terasa
- Parking
- Vrt/dvorište
Opis nekretnine
- Novogradnja
- Blizina dućana
- Blizina škole
- Miran predio
- Ekskluzivna lokacija
Maksimir
Naziv Maksimir odnosi se na nekoliko stvari: to je jedna od zagrebačkih četvrti, stadion NK Dinama, park i Zoološki vrt koji je uklopljen u dio parka.
Lociran u istočnom centralnom dijelu grada, Maksimir je primarno bio park.
Izračunajte ratu kredita za navedenu nekretninu
Izražene brojke su samo primjer, za točne informacije obratite se vašoj banci ili kreditnoj kući.
Ukoliko za ovu nekretninu vidite niže oglašenu cijenu ista vrijedi kod nas!
