ID 4374
  • Follow changes

Remetinec-Jaruščica-atraktivan ured 262 m² s parkinzima kod Arena Centra

  • 262.00 m2
  • 7
  • 1
  • 2
  • Prizemlje
3.500.00 € cca 26.370.75 Kn 13.00 €/m²
Kontaktirajte nas
Ivana Rajković Špes mob: +385 91 28 64 399 tel: +385 1 24 21 977
01

Opis nekretnine

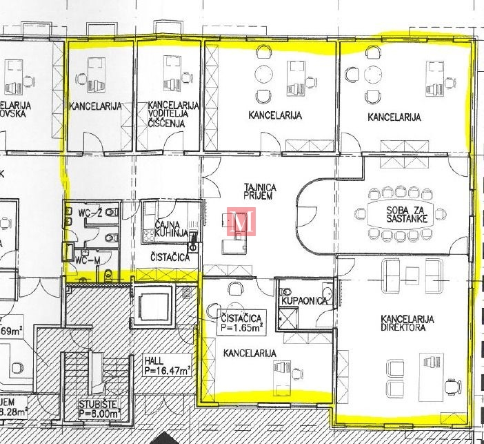
Odličan uredski prostor površine 262 m2 na prizemlju poslovno-stambene zgrade u neposrednoj blizini zagrebačke Arene.
Prostor se sastoji od 6 prostranih kancelarija, sobe za sastanke, prostora predviđenog za tajnicu, čajne kuhinje, kupaonice i 2 toaleta. Uređen je i dobro održavan, s rasporedom koji omogućuje funkcionalno i ugodno poslovanje.
Na raspolaganju je i zajednički prostor na hodniku te porti. Lokacija osigurava izvrsnu povezanost – u blizini su tramvajske i autobusne linije, brojni dućani i svi sadržaji potrebni za svakodnevni život. Posebna prednost je neposredna blizina Arena Centra, koji dodatno podiže atraktivnost ove lokacije.
Uvjeti zakupa:

cijena najma iznosi 3.500 EUR + PDV (13,3 EUR/m2 + pdv)

najmoprimac snosi režijske troškove (individualna potrošnja)

obavezan depozit

period zakupa – minimalno 2 godine

Odlična poslovna lokacija – agencijska preporuka.
Agencijska provizija: 1 mjesečna zakupnina + PDV.

02

Ostali podaci

  • Tip ponude:najam
  • Prijevoz:Autobus
  • Udaljenost prijevoza:4 min

Prostori vezani uz nekretninu

  • Prizemlje

Opis nekretnine

  • Rijetkost na tržištu
04

Izračunajte ratu kredita za navedenu nekretninu

Izražene brojke su samo primjer, za točne informacije obratite se vašoj banci ili kreditnoj kući.

Ukoliko za ovu nekretninu vidite niže oglašenu cijenu ista vrijedi kod nas!