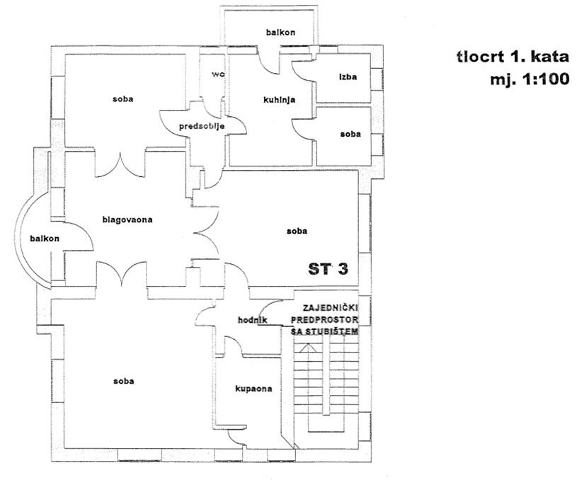
Opis nekretnine
Prodaje se predivna villa na jednoj od najljepših i najekskluzivnijih lokacija u blizini Britanskog trga.
Pogodna je za adaptaciju ili rušenje i izgradnju zamjenskog objekta.
Rijetka i posebna nekretnina na tržištu, više info na osobni upit.
Čisto vlasništvo, preporuka agencije!
Agencijska provizija: 3% + PDV.
Ostali podaci
- Tip ponude:prodaja
- Podtip nekretnine:vila
- Prijevoz:Autobus,Tramvaj
- Udaljenost prijevoza:1 min
- Stolarija:Drvena stolarija
- Orijentacija:Sjever,Jug,Istok,Zapad
Prostori vezani uz nekretninu
- Balkon
Opis nekretnine
- Blizina centra
- Miran predio
- Nenamješteno
Prikazane cijene u Kn su okvirne i izračunate su na osnovu cijene u Eurima i srednjeg tečaja HNB u tekućem danu.
Centar
Kada govorimo o Zagrebu, prvo na što pomislimo jest centar grada podijeljen na Gornji i Donji grad sa mnoštvom malih ulica, kafića punih ljudi, kazališta, muzeja, galerija, kina i brojnih parkova.
Gornji je grad najstariji dio grada, ustvari, nekada je i sam bio srednjovjekovni gradić. Ranije zvan Gradec, u 19. se stoljeću ujedinio sa Kaptolom u grad kakvog danas poznajemo – Zagreb.
Izračunajte ratu kredita za navedenu nekretninu
Izražene brojke su samo primjer, za točne informacije obratite se vašoj banci ili kreditnoj kući.
Ukoliko za ovu nekretninu vidite niže oglašenu cijenu ista vrijedi kod nas!




