Opis nekretnine
Luksuzno novorenoviran 4s stan od 130 m2 na 1.katu atraktivne i nedavno kompletno obnovljene urbane vile sa samo 3 stana na Lašćini, u nesporednoj blizini bolnice Merkur, te 7 min pješke do Kvaternikovog trga.
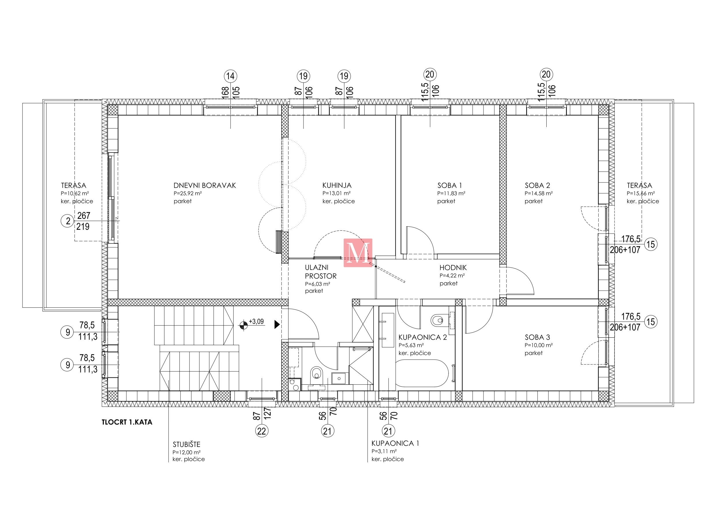
Stan se sastoji od predsoblja, kuhinje s blagovaonicom, dnevnog boravka s izlazom na terasu, hodnika, 3 spavaće sobe, 2 kupaonice i druge terase.
Stan ima alarmni i protupožarni sustav i svaka prostorija je klimatizirana.
Kuhinja i svi ugradbeni ormari su rađeni po mjeri.
Sva ugrađena oprema je vrhunske kvalitete. Svi kućanski aparati su marke Bosch.
Kupanice su izvedene u mikrocementu.
Uz stan ide i 1 garažno mjesto, kao i ostava u podrumu od 4 m2.
Fantastična lokacija: 7 min vožnje do Kaptola i strogog centra grada, blizina internacionalnih škola, uz sve sadržaje na 2 min pješke od zgrade (Konzum, Prehrana, Mrkvica, Fisherija, mesnica Igo-mat, cvjećarna, pizzeria, craft pekarnica Noel Bread & Deli.
Vrt na zajedničko korištenje svih stanara.
Stan se iznajmljuje kompletno namješten i bit će slobodan za najam od 12/2025.
Dugoročan najam uz depozit u visini 2 mjesečne najamnine.
Kućni ljubimci nisu dozvoljeni.
Agencijska provizija: 1 mjesečna najamnina + PDV.
Ostali podaci
- Tip ponude:najam
- Podtip nekretnine:Stan u urbanoj vili
- Prijevoz:Autobus,Tramvaj
- Udaljenost prijevoza:2 min
- Grijanje:Centralno etažno plinsko
- Stolarija:ALU stolarija
- Orijentacija:Istok,Zapad,Sjever
- Energetska učinkovitost:A+
Prostori vezani uz nekretninu
- Balkon
- Garaža
- Spremište
- Terasa
- Vrt
Opis nekretnine
- Blizina centra
- Blizina dućana
- Blizina škole
- Namješteno
- Velike staklene stijene
Prikazane cijene u Kn su okvirne i izračunate su na osnovu cijene u Eurima i srednjeg tečaja HNB u tekućem danu.
Maksimir
Naziv Maksimir odnosi se na nekoliko stvari: to je jedna od zagrebačkih četvrti, stadion NK Dinama, park i Zoološki vrt koji je uklopljen u dio parka.
Lociran u istočnom centralnom dijelu grada, Maksimir je primarno bio park.
Izračunajte ratu kredita za navedenu nekretninu
Izražene brojke su samo primjer, za točne informacije obratite se vašoj banci ili kreditnoj kući.
Agencijska provizija: 1 MJESEČNA NAJAMNINA + PDV
Ukoliko za ovu nekretninu vidite niže oglašenu cijenu ista vrijedi kod nas!
Kupac je dužan potpisati agencijski nalog o posredovanju prije razgleda nekretnine.
