ID 4518
  • Follow changes

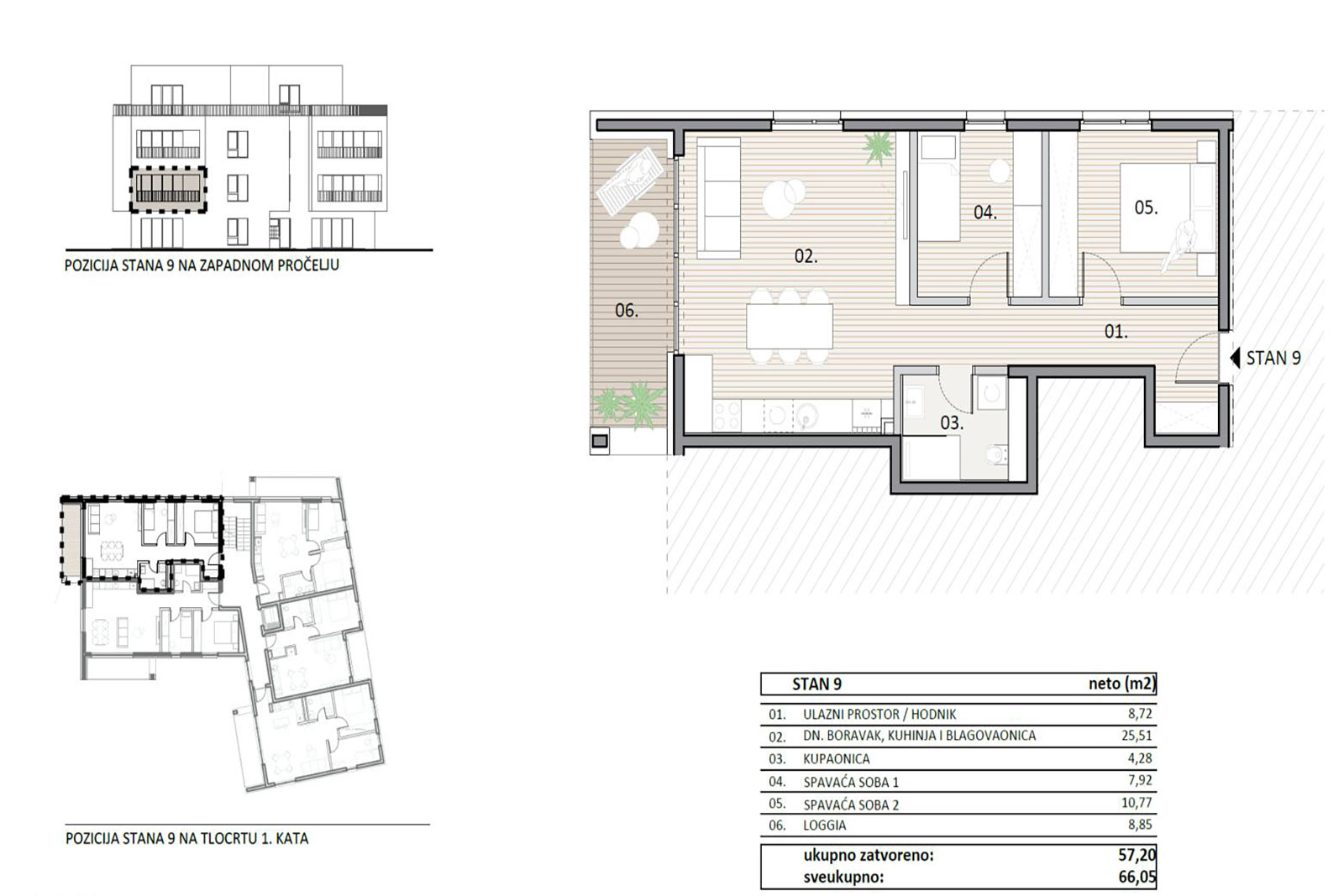
Donja Dubrava-Trnava-NOVOGRADNJA-moderan 3S stan s loggiem&parkinim mjestom

  • 57.2 m2
  • 3
269.694.00 € cca 2.032.009.44 Kn 4.714.00 €/m²
Kontaktirajte nas
Gabrijela Tolić tel: +385 1 2421 977 mob: +385 91 602 0161
01

Opis nekretnine

Moderan 3-soban stan na top lokaciji u Donjoj Dubravi s loggiem i jednim parkirnim mjestom.
Stan se sastoji od ulaznog prostora, dnevnog boravka s kuhinjom i blagavaonicom, 2 spavaće sobe, kupaonice (tuš), loggiemi jednim parkirnim mjestom.
Stan se nalazi u neposrednoj blizini svih sadržaja potrebnih za kvalitetan svakodnevni život:
 • autobusna stanica – 250 m
 • Dom zdravlja Trnava – 300 m
 • dječji vrtić Jabuka – 350 m
 • nova osnovna škola (u izgradnji) – 350 m
 • kvartovske trgovine, kafići i restorani – 200–300 m
 • željeznička stanica (Branimirova) i kampus Borongaj – u blizini
 • Shopping centar City East – nekoliko minuta
Odlična prometna povezanost i razvijena infrastruktura dodatno povećavaju vrijednost ove lokacije.
Stan 57,20m2, + 8,85m2 lo]a s parkirnim mjestom uključenim u cijenu.
Bez agencijske provizije za kupca.

02

Ostali podaci

  • Tip ponude:prodaja
  • Podtip nekretnine:Stan u zgradi
  • Prijevoz:Autobus
  • Grijanje:Centralno etažno plinsko
  • Energetska učinkovitost:A+

Prostori vezani uz nekretninu

  • Balkon

Opis nekretnine

  • Blizina dućana
  • Blizina škole
  • Uređena okućnica

Osnovna infrastruktura

  • Gradski vodovod
  • Kanalizacija
  • Plin

Prikazane cijene u Kn su okvirne i izračunate su na osnovu cijene u Eurima i srednjeg tečaja HNB u tekućem danu.

04

Izračunajte ratu kredita za navedenu nekretninu

Izražene brojke su samo primjer, za točne informacije obratite se vašoj banci ili kreditnoj kući.

Ukoliko za ovu nekretninu vidite niže oglašenu cijenu ista vrijedi kod nas!