Description of property
Exceptionally attractive building plot of 2,832 m² for the construction of a luxurious villa with a swimming pool, located in a prime micro-location in Momjan.
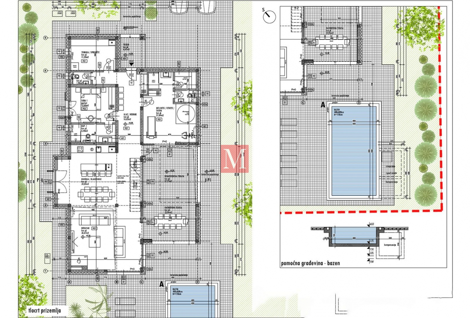
The plot comes with an approved project for the construction of a luxury villa and consists of 987 m² of building land and 1,845 m² of green zone.
A valid building permit has been issued for:
– Construction of a residential building, category 2.b, ground floor + first floor (P+1), with one residential unit– Construction of an auxiliary residential structure, category 3.b, swimming pool
The residential building consists of two above-ground floors (ground floor + one upper floor), and the pool is fully in-ground with a footprint of 38.25 m².
According to the building permit, the gross floor area of the building is 348.31 m², of which the ground floor is 188.35 m² and the upper floor is 159.96 m².
The price of the land, including the project and building permit, is €270,000 + VAT.The plot can be purchased as part of the approved development with an additional 2 building plots — a total of 3 plots intended for the construction of 3 detached luxury villas.The total price for all three plots and the project (100% ownership of the company) is €780,000.
The property is situated in a peaceful and scenic location, just 6 minutes from Buje and 20 minutes from the coast/Umag. The renowned Kabola winery is in the immediate vicinity.
A rare opportunity on the market, with clean ownership – highly recommended by the agency.More information available upon request.
Agency commission: 3% + VAT.
Other information
- Offer type:sale
- Subtype:građevinsko
Calculate your loan payment for this property
The caluclation is just an example, for accurate loan information contact Your bank.
If for this property you see a lower advertised price the same applies to us!