Opis nekretnine
EKSKLUZIVNA NOVOGRADNJA U SAMOM SRCU TREŠNJEVKE – NA NOVOJ CESTI!
Luksuzni stambeno poslovni kompleks “Allegheny Plaza” proteže se na 4 etaže i broji 56 stanova napravljenih od pomno biranih materijala vrhunske kvalitete kako bi budućim stanarima pružila posebnu lakoću življenja. Ovaj jedinstven projekt predstavlja spoj moderne arhitekture i inovacije uz zeleni odmak od gradske vreve.
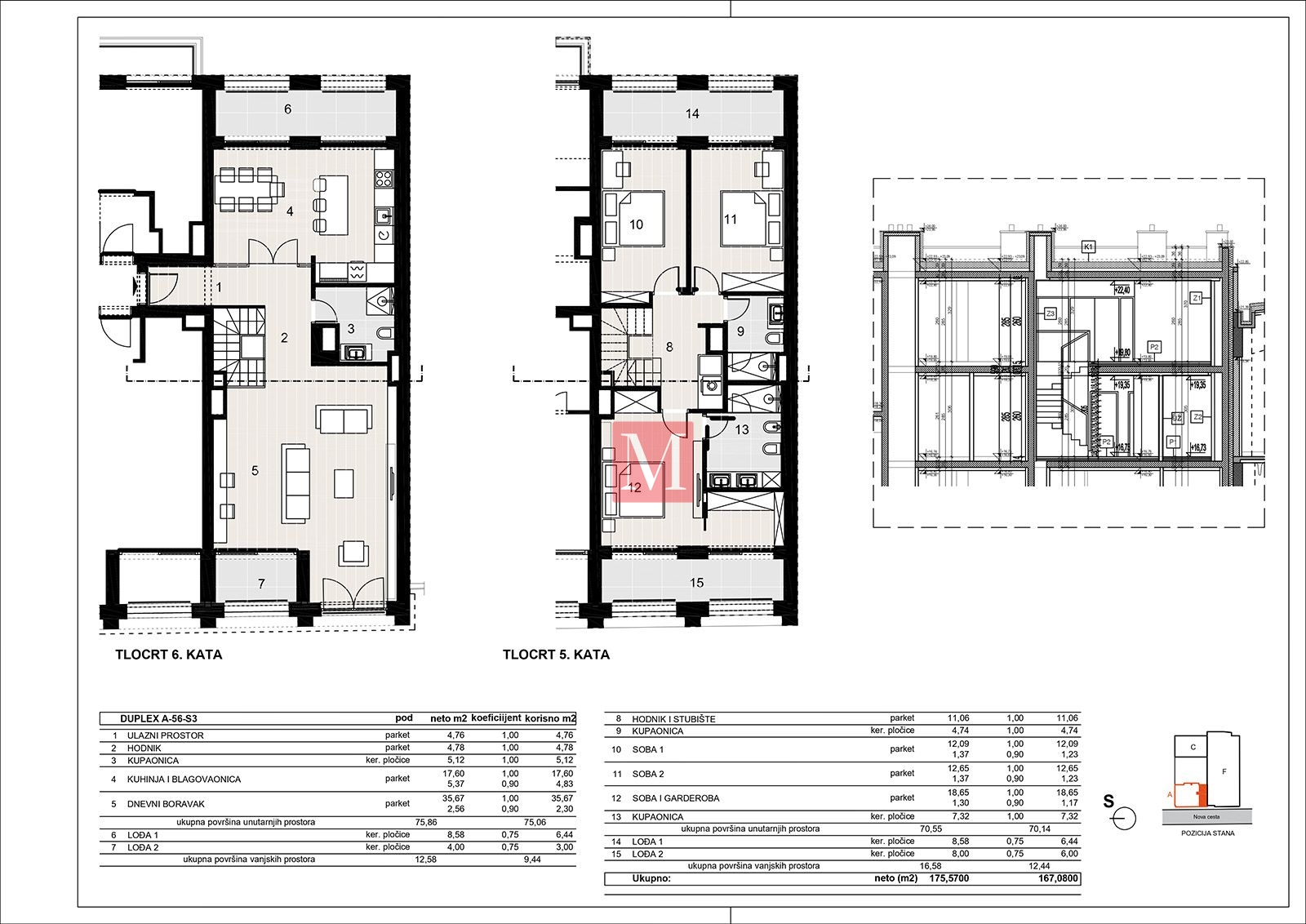
Raspoloživ duplex ukupne površine 167,08 m2 prostire se preko petog i šestog kata i sastoji se od ulaznog hodnika, dnevnog boravka, kuhinje s blagovaonom, 3 spavaće sobe, 3 kupaonice i 4 loggie. Uz kupnju stana obavezna je i kupnja spremišta u podrumu zgrade po cijeni od 10,000-12,000 eura, ovisno o veličini.
SPECIFIKACIJA STANDARDA I OPREME:
ZAJEDNIČKI ATRIJ
Park u središtu kompleksa na koji su orijentirani vanjski prostori stanova, kao i veliko reflektirajuće stakleno platno poslovnih prostora
Obogaćen mirisnim niskim i visokim raslinjem, grmljem i drvećem te visokim ozelenjenim zidom
Ambijentalno osvjetljen prostor obogaćen zaigranim opločenjem te kreativnom urbanom opremom koja omogućava sjedenje, odmor i druženje
ULAZ U ZGRADU I ZAJEDNIČKE KOMUNIKACIJE
Visokokvalitetna ostakljena ulazna vrata s automatskim sustavom zaključavanja
Kontrola pristupa ostvarena je kroz sustav portafona i elektromagnetskih ključeva
Ugodna i brza komunikacija od ulaza do svakog pojedinog stana ostvarena je putem hodnika, stubišta i suvremenog dizala
Elegantan dizajn, obloge svijetlih i toplih boja te prigodno osvjetljenje stvaraju ugodnu atmosferu od ulaza do svakog pojedinog stana
ULAZ U STAN
Visokokvalitetna protuprovalna vrata sa špijunkom
Suvremeni video portafon s mogućnošću integracije sa svim sustavima u stanu
Svi zidovi prema hodnicima i dizalima višestruko su izolirani kako se buka iz tih prostora ne bi prenosila u stanove
BORAVIŠNI PROSTORI
Dnevni boravak i blagovanje međusobno su povezani kako prostorno, tako i odabirom boja i materijala, a blagovaonica ima i direktnu otvorenu vezu s kuhinjom
Povezanost s vanjskim prostorom ostvarena je putem lođa na svim glavnim prostorijama stana
Veliki elegantni prozori i stijene od aluminijskih profila s ugrađenim roletama
Unutarnja drvena vrata suvremenog dizajna
Utičnice, priključak za telefon i brzi Internet
Svi zidovi oblagani su gipskartonskim oblogama tako da je osiguran fleksibilan dizajn
KUHINJA
Direktna otvorena veza s blagovaonicom
Dovoljno mjesta za velike radne plohe i izvođenje otoka prema boravišnome prostoru
Podna obloga izvedena od visokokvalitetne keramike/vrhunskog višeslojnog parketa I. klase
Dovod i odvod vode, priključci za pećnicu, indukcijski štednjak, mikrovalnu pećnicu, hladnjak i perilicu suđa, mogućnost ugradnje nape
SPAVAĆE SOBE
Veliki elegantni prozori i stijene od aluminijskih profila s ugrađenim roletama
Povezanost s vanjskim prostorom ostvarena je putem izlaza na lođu
Prostor za ugradnju visokih ugradbenih ormara
KUPAONICE I TOALETI
Vrhunski sanitarni uređaju uređajima i oprema iz linija tipa Laufen, Duravit i Hansgrohe
Dovod i odvod vode, priključci za perilicu i sušilicu robe (ako nije u spremištu)
Podna obloga izvedena od visokokvalitetne keramike
Zidne obloge u zoni tuša izvedene s velikoplošnim vrhunskim keramičkim pločicama I. klase
Ostale zidne površine obložene s kombinacijom velikoplošnih vrhunskih keramičkih pločica I. klase i prvoklasnim vodoperivim bojama tipa Caparol
SPREMIŠTA
Prostor za ugradnju visokih ugradbenih ormara
Smještaj unutarnje jedinice za grijanje i hlađenje
Dovod i odvod vode, priključci za perilicu i sušilicu robe (ako nije u kupaonici)
VANJSKI PROSTORI
Prostrane lođe, balkoni ili terase kojima se pristupa iz boravišnih prostora ili spavaćih soba putem velikih elegantnih stijena od aluminijskih profila s ugrađenim roletama
Otmjen dizajn aluminijske bravarije i zaštitnih ograda
Podna obloga izvedena od visokokvalitetne keramike
SUSTAVI, TEHNIČKA RJEŠENJA, OPREMA
Svi stanovi opremljeni su visokoučinkovitim integriranim sustavom grijanja, hlađenja i pripreme potrošne tople vode preko suvremenih Samsung dizalica topline
Svi zidovi stanova oblagani su tako da je osiguran fleksibilan dizajn
Podno grijanje u svim prostorijama stanova
Vrhunska zvučna i toplinska izolacija najmodernijih kontaktnih sustava vanjske fasade tipa Sto, Roefix ili Caparol
Odlična osvijetljenost stanova tijekom cijelog dana, a ujedno zvučna te toplinska zaštita tijekom bilo kojeg godišnjeg doba ostvarene su putem velikih prozora i staklenih stijena vrhunskih fasadnih i prozorskih rješenja AluKönigStahl Schüco od tankih aluminijskih profila i s troslojnim ostakljenjem
Vrhunski višeslojni parketi I. klase
Visokokvalitetna keramika
Vrhunski sanitarni uređaj i oprema iz linija tipa Laufen, Duravit i Hansgrohe
PARKING
Natkrivena parkirna mjesta u prizemlju
Garažno-parkirna mjesta u podzemnoj garaži kojoj se pristupa putem suvremenog dizala za automobile
230 V utičnice spojene na potrošnju stanova preko kojih je moguće osigurati punjenje električnih automobila
Osvijetljenost adaptivnom LED rasvjetom
Mogućnost kupnje natkrivenog parkirališnog mjesta u prizemlju ili u garaži po cijeni od 30,000 eura.
Izuzetna nekretnina na tržištu – najviši nivo življenja na odličnoj lokaciji – preporuka agencije!
Više info na osobni upit.
Bez provizije za kupca!
Ostali podaci
- Tip ponude:prodaja
- Podtip nekretnine:Stan u novogradnji
- Prijevoz:Tramvaj
- Grijanje:Podno grijanje,Sustav grijanja, klimatizacije i ventilacije
- Stolarija:ALU stolarija
- Orijentacija:Istok,Zapad
Prostori vezani uz nekretninu
- Blagovaona
- Dnevni boravak
- Hodnik
- Kuhinja
- Kupaona
- Loggia
- Spavaća soba
- Spremište
Opis nekretnine
- Blizina centra
- Blizina škole
- Ekskluzivan interijer
- Uređena okućnica
- Velike staklene stijene
Prikazane cijene u Kn su okvirne i izračunate su na osnovu cijene u Eurima i srednjeg tečaja HNB u tekućem danu.
Trešnjevka
Jedan od najvećih i najgušće naseljenih kvartova u Zagrebu zove se Trešnjevka.
Zbog svoje veličine, administrativno se dijeli na dva dijela: sjever i jug.
Izračunajte ratu kredita za navedenu nekretninu
Izražene brojke su samo primjer, za točne informacije obratite se vašoj banci ili kreditnoj kući.
Ukoliko za ovu nekretninu vidite niže oglašenu cijenu ista vrijedi kod nas!
